Все инструменты для уникального дизайна

RNSSC

image alt
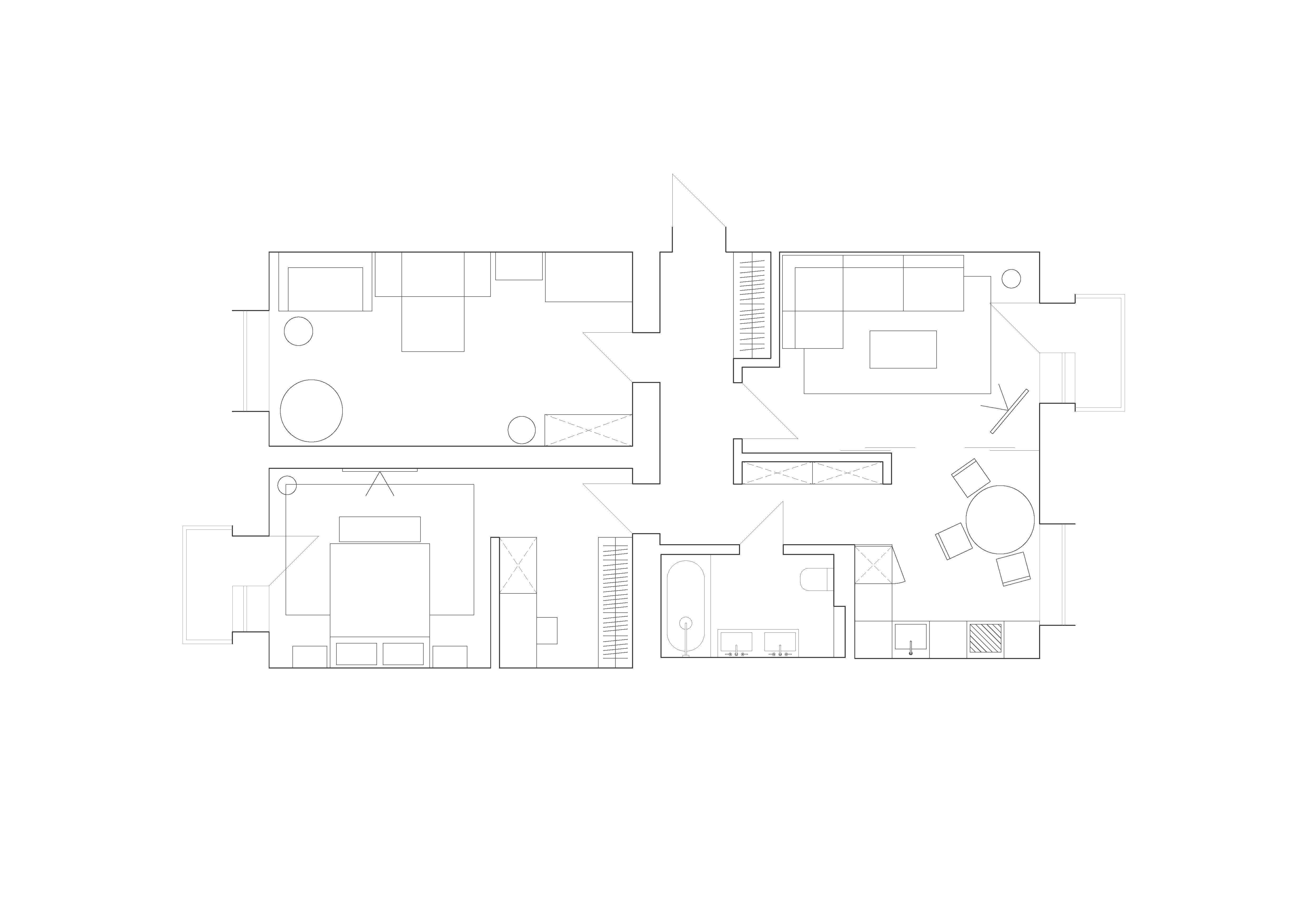
КВАРТИРА Б2
© RNSSC. ВСЕ ПРАВА ЗАЩИЩЕНЫ
ЛОКАЦИЯ: МОСКВА, РОССИЯ
Зона гостиной перемещена в смежную с кухней комнату. Между кухней и гостиной организованы раздвижные панели, чтобы объединить эти зоны. Двери, ведущие из гостиной в коридор, имеют стеклянные вставки, что позволяет естесственному свету попадать в коридор. В спальне запроектирована перегородка, разделяющая пространство на зону для сна и гардеробную с рабочим местом. Коридор оборудован встроенными нишами под гардеробные шкафы и пространства для хранения. Потолок опущен во всех помещениях для размещения в нем встроенных светильников, выбранных в качестве основного способа искусственного освещения квартиры. В кухне вентиляционное оборудование спрятано в участок запотолочного пространства, проходящего по контуру кухонного гарнитура.
А Р Х И Т Е К Т У Р Н А Я
С Т У Д И Я
С Т У Д И Я
А Р Х И Т Е К Т У Р Н А Я
image altimage altimage altimage altimage altimage altimage altimage altimage alt
ГОД: 2023
ПЛОЩАДЬ: 65 М2
ТИП: КВАРТИРА ТРЕХКОМНАТНАЯ
Р
Х
И
Т
Е
К
Т
У
Р
Н
А
Я
Я
И
Д
У
Т
С
А
Ваш заказ
  • image alt
    POWER Full 14
    POWER Full 14
    1000
  • image alt
    POWER Full 14
    POWER Full 14
    2000
3000
Выберите вариант доставки

Оставляя заявку, вы соглашаетесь на обработку персональных данных и с условиями бронирования счёта

2
Craftum Конструктор сайтов Craftum